Flat Bush 学校大道
奥克兰 Flat Bush
Parkville小区位于奥克兰最开阔的自然保护区Barry Curtis公园边,专为现代生活方式而建。项目施工进行中,预计将于2022年底完工。
北欧简约风设计,在繁忙的城市生活中给您一个清新大气的家。多种房型可供选择,包括2居室公寓,2居室、3居室、4居室住宅,满足不同居住需求。每套住宅精心布局,最大限度利用自然采光,兼顾功能与舒适性。
选择Parkville小区——抓住一个可以坐拥Barry Curtis公园,享受全新现代住宅的难得机会。您和家人一年四季都畅享身居公园旁的惬意便捷——在公园漫步、骑行,游乐场玩耍……繁忙的都市生活中,轻松享受工作与生活的平衡。Barry Curtis公园有超过50公里的天然湿地、本地灌木丛,被誉为Flatbush和Ormiston社区的一块“翡翠宝石”。
– 公寓:3种户型可供选择,包含2间卧室、1间浴室和一个停车位。使用面积为56m²-68m²,价格从$629,000起。户型设计通透简约,方便打理,让您有更多时间享受生活,以及周边的闲适环境。
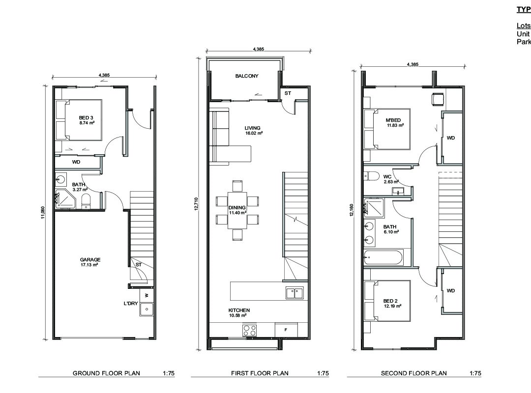
– 10号地:这是一个可以俯瞰Barry Curtis公园的3层楼设计,内部装修简约、优雅。卧室的巧妙布局,使主卧享有阳光充足的私人屋顶景观,并让每一层空间都最大化。一楼起居空间惬意舒适并延伸到室外露台。现代化的厨房包含不锈钢家用电器以及一个独立操作台,增加了储物及活动空间。
– 11&19号地:市面上少有的大气简约又好打理的四居室设计,配套有额外的路边停车位,适合大家庭居住,方便招待宾客。紧凑感的流线型厨房与用餐区设计,让您和家人享受更多相聚时光。时尚的现代景观设计兼顾私密区域和公共空间,卧室设计特别考虑自然采光。对于想以入门级价格享受更大居住空间的人来说,这是一个完美的住宅选择。



























